Limestone Grove, Scarborough
£395,000 Guide Price
Features
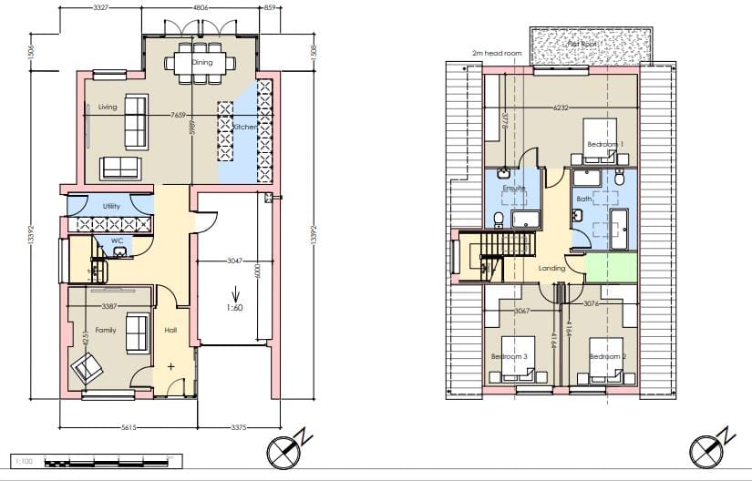
Full Description
Entrance
Covered entrance way
Hallway
Lounge
Front facing room.
Kitchen/Diner
Range of modern units and appliances. UPVC windows and Patio Doors leading to the rear garden.
Utility Room
Access to the side of the property .
Cloakroom
Bedroom 1
Spanning the rear of the property with en suite bathroom.
Bedroom 2
UPVC windows overlooking the front of the property.
Bedroom 3
UPVC windows overlooking the front of the property.
Bathroom
Outside
Driveway leading to integral garage with electric door, power and light. Facility for an electric charging point. Access at both sides of the property to the enclosed rear garden.
Coming soon
Coming soon







